Hello ! Je suis contente de vous retrouver aujourd’hui pour un nouvel article déco de ma fameuse série hebdomadaire des » visites appart « . Après mainte et mainte recherche, j’ai enfin découvert un sublime studio de 25m2 à vous présenter ! Et qui plus est, rudement tendance dans un style Scandi / New-Yorkais.
J’adore connaitre la façon dont sont agencés les appartements. Lorsque je me promène, et ce depuis toute petite, j’adore m’imaginer l’allure que possèdent les habitats. D’autant plus, lorsque ces derniers sont de tailles restreintes. J’ai toujours affectionné cette idée d’aménager un intérieur atypique tout en le rendant aussi esthétique et fonctionnel que possible. Cependant, agencer son studio de 10, 15 ou 20m2, lorsque nous sommes étudiants, est loin d’être une mince affaire. Et j’en sais quelque chose !
C’est pourquoi, il me semblait nécessaire de vos rédiger quelques articles à ce sujet. Afin que vous puissiez, à votre tour, adapter la superficie du studio selon vos désirs, votre personnalité et votre budget.
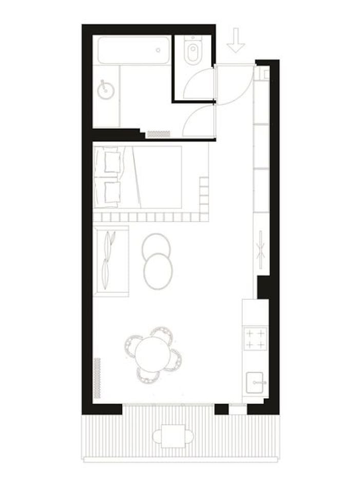
Par conséquent, possédant une faible enveloppe budgétaire, une faible surface habitable et des demandes relativement exigeantes, la mission des architectes était plutôt épineuse. Toutefois, l’agence Transition Interior Design, en charge du projet, a atteint leur objectif. Et je trouve le résultat extrêmement réussi. Alors partons dès à présent découvrir cet ingénieux studio entièrement revisité. Mais avant d’entamer la visite, voici le plan de l’appart.

Des exigences bien pointues pour une mission réussie haut la main
Situé en banlieue Parisienne, à Anière-Sur-Seine, un jeune étudiant de 26 ans a investi dans un petit studio de 25m2. La principale ambition du client résidait dans la construction d’un véritable coin nuit. En effet, il ne souhaitait pas disposer d’une ordinaire mezzanine ou d’un canapé-lit. Certes, ces options sont rudement pratiques dans un petit logement, surtout pour un studio de 25m2 tel que celui-ci. Le projet consistait donc à créer un appart optimisé, fonctionnel et esthétique, tout l’inverse du studio d’origine.
De ce fait, les deux architectes d’intérieur ont dû ruser afin de satisfaire les demandes du client. C’est à peine deux mois plus tard que le projet voit enfin le jour. Impressionnant n’est-ce pas ? En définitive, en peu de temps, les décoratrices sont parvenues à transformer un studio lambda, doté d’une simple cuisinière et mezzanine, en un véritable appart. En effet, tout y est : la cuisine, le salon, l’espace nuit, la salle de bain et même un dressing ! De surcroît, le tout dans un univers doux et moderne. L’intérieur est lumineux et en totale harmonie. Chaque pièce dispose de son propre espace.
Puis, pour finir, afin de fournir au client un magnifique intérieur sur-mesure et personnaliser, les décoratrices se sont donc munies d’astuces afin de pallier le manque de budget. Elles ont par exemple, réutilisé des caissons d’Ikea en estrade afin de surélever le lit. En clair, elles ont usé des méthodes Ikea hack, extrêmement en vogue.
Une pièce de vie lumineuse
Un salon spacieux pour un studio de 25m2
À l’origine, l’appartement renfermait simplement une grande pièce de vie et une salle de bain. Une ordinaire mezzanine séjournait au fond de la pièce. Certes, doté d’une cuisinière, le studio était peu meublé et manquait terriblement d’espaces de rangement. De plus, aucune harmonie ne régnait au sein de l’habitat.

Par conséquent, afin d’utiliser les moindres superficies de l’appart, les décoratrices ont décidé de partager le séjour en deux. Pour cela, elles ont donc réduit l’espace salon à 13m2 afin d’établir un réel coin chambre, mesurant par conséquent 4m2. Je vous l’accorde, ces superficies sont extrêmement modestes. Cependant, à l’aide de la bibliothèque, une des pièces phares du studio, le séjour paraît spacieux et lumineux. Réalisé sur-mesure par les architectes, le mur bibliothèque permet de séparer le salon et la chambre tout en délicatesse. Il n’y a pas de coupure brutale risquant d’intensifier la modicité de la pièce de vie.
Un univers contrasté entre la douceur scandinave et la robustesse New-Yorkaise
Par ailleurs, ne possédant qu’une seule fenêtre, le studio ne bénéficie pas d’une grande luminosité. Néanmoins, grâce aux coloris minutieusement sélectionnés, les murs blancs reflètent les rayons lumineux, se propulsant ensuite dans l’ensemble de l’habitat.

Dans un premier temps, le client désirait une simple déco américaine, au style d’un loft New-Yorkais.
Cependant, en vue des minces superficies, les décoratrices ont préféré opter pour une palette plus fraiche et scandinave. À l’aide des ces teintes douces et épurées, les coloris participent donc à la stimulation et au dynamisme de l’atmosphère. Toutefois, afin de satisfaire les désirs du client, le binôme d’architecte a tout de même inséré des briques blanches sur le mur du salon. Trouvées chez Castorama, les briques blanches procurent du cachet au séjour. C’est d’ailleurs l’une des premières choses m’ayant attiré l’oeil, hormis le mur bibliothèque bien entendu. De ce fait, nous ne sommes plus en possession d’une simple pièce blanche et scandinave. Les notes street et industrielles New-Yorkaises apportent une spécificité au salon. Nous profitons donc d’un sublime combo entre une allure brute et douce. Les briques robustes s’adoucissent à l’égard du mobilier rond et de style scandinave.

D’autre part, comme vous pouvez le constater, quelques notes boisées ont été délicatement disséminées dans l’ensemble du studio. Cette matière noble occupe une place centrale dans la déco intérieure. C’est d’ailleurs celle-ci qui procure cette atmosphère chaleureuse et conviviale.


Une cuisine ouverte fonctionnelle pour un studio de 25m2
À l’opposé, du salon, une cuisine ouverte lui fait écho. Décorée dans un style moderne, épuré et chaleureux, son aménagement est extrêmement judicieux. En effet, construite toute en longueur, la cuisine tient à ses côtés un meuble télé ainsi qu’un dressing. Établie sur un même mur, cette organisation permet ainsi de maximiser l’espace. Nous pouvons alors aisément circuler grâce à la verticalité de l’agencement.

Par ailleurs, hormis sa fonctionnalité, la cuisine est aussi esthétique. Les matières et motifs ont été scrupuleusement adoptés. Toujours dans les mêmes tons que le séjour, les nuances blanches, bleu pastel et boisées des meubles offrent un élan de fraîcheur au studio de 25m2. Nous ressentons bel et bien l’univers nordique. Surtout en présence du motif géométrique sur le mur de la cuisine.

J’adore ce motif. L’association du bois et du bleu pastel fonctionne à merveille. De plus, dans une nuance légèrement plus adoucie, le bleu de la cuisine rappelle celui de la chambre.

Par conséquent, tout a réellement été repensé. Du mur au plafond, des matériaux et textures jusqu’aux coloris, tout est étudié dans les moindres détails. De plus, la plupart des mobiliers provient de pièces uniques, chinées par ci-par-là. Ces derniers offrent une sublime jonction entre modernité et authenticité.
La chambre : la pièce phare de l’habitat
Un agencement astucieux pour un studio de 25m2
La pièce maitresse du studio siège dans la bibliothèque blanche, disposée au milieu du salon. Faisant office de cloison, celle-ci permet de délimiter distinctement deux espaces, tout en conservant une belle luminosité. Ainsi, la lumière naturelle de la seule fenêtre du studio peut alors se diffuser dans l’ensemble des pièces et ce jusqu’à la chambre. A contrario, en optant pour une cloison ordinaire, l’espace manquerait terriblement de luminosité et l’espace paraîtrait plus étouffé. C’est pourquoi, l’option de la bibliothèque au style Claustra demeure une astucieuse alternative. À l’aide de ses diverses étagères, elle crée ainsi des espaces de rangement supplémentaires, tout en conservant une certaine l’intimité.

Trônant au-dessus d’une estrade, les architectes ont alors pu intégrer des tiroirs. Intensifiant une fois de plus les espace de rangement. Finalement, il est relativement aisé d’optimiser l’espace. En effet, faisant preuve de créativité et d’ingéniosité, tout est possible. Cet appartement en est un parfait exemple. Les couleurs et matériaux ont soigneusement été sélectionnés afin d’intensifier la clarté de l’habitat. À l’instar de la bibliothèque et de l’estrade optimisant l’espaces.

Des coloris spécifiques à l’univers
D’autre part, en termes de coloris, les décoratrices ont opté pour un vif bleu turquoise. Cette couleur est idéale pour apporter du peps et de la vitamine à un intérieur. Il est vrai cette teinte pourrait faire peur à certain. En effet, c’est une nuance relativement flashy qui ne s’accorde pas avec tout. Cependant, dans ces lieux, le turquoise se fond à merveille avec les tons scandinaves du séjour. Bien au contraire, je trouve même qu’elle accentue la profondeur de la pièce et l’illumine davantage. De surcroît, en optant pour un mur turquoise et non blanc, cela met en exergue l’espace nuit. La chambre devient donc véritablement la pièce phare du studio de 25m2.

Une salle de bain en totalement harmonie avec le studio
La salle de bain a également été repensée dans les moindres détails. Ici, la déco pioche dans chaque univers de la pièce de vie. Nous retrouvons, par exemple, le bleu symbolique de la chambre ainsi que les motifs géométriques de la cuisine. De ce fait, en effectuant des piqures de rappel de cette façon, cela permet d’établir une belle union dans l’ensemble de l’appartement. C’est comme si le studio ne formait qu’une seule pièce. Nous ne disposons pas de pièces disposées çà et là, sans aucune union, ni transition.

Puis, pour conclure, à l’instar des autres pièces du studio, la salle de bain aussi a bénéficié de ruses et astuces. Afin de concevoir une salle d’eau à moindre coût, les architectes ont aussi fait appel au fameux Ikea Hack. Par exemple, afin d’édifier un meuble lavabo, les mêmes caissons de la chambre ont été utilisés. Constatez, le meuble semble véritable.
Crédit photo : Projet Côté Maison – Transition Interior Design
Les accessoires choisis par les architectes pour meubler ce studio de 25m2
Par ici pour adopter le style scandinave et new-yorkais de ce lumineux studio étudiant !

1 // 2 – Étagère Maisons du Monde // 3 – Enceinte Marshal // 4 // 5 – Famous Design Copie / reproduction chaise Eames // 6 – Presse-agrumes Juicy Salif Alessi // 7 – Vase cactus Serax // 8 – Modèle original à chiner // 9 – Bougie Verveine Diptyque // 10 – Lampe JWDA Menu.
