Et si on passait nos vacances en Australie ? Je rêve déjà de mes prochaines vacances au soleil, loin de la vie tumultueuse parisienne. C’est pourquoi, j’ai décidé de vous présenter aujourd’hui un de mes plus gros coeur, la résidence « Soul of Gerringong ». Celle-ci à fait l’objet d’un projet pharaonique consistant à la transformation d’une ferme en une sublime maison d’hôte.
En investissant dans cette vieille bâtisse, l’objectif premier de la décoratrice d’intérieure était de conserver l’atmosphère d’origine de la ferme tout en y incorporant un esprit côtier modernisé.
Située à Nouvelle-Galles-du-Sud en Australie, la maison mise principalement sur le design et l’authenticité de la ferme. À l’instar des propriétaires, je suis totalement tombée amoureuse du charme de la bâtisse. Lumineuse, épurée, au style moderne et décontracté, cette vieille ferme rassemble toutes les caractéristiques essentielles d’une maison de vacances. Agréable et confortable, on s’y sent comme chez soi. D’ailleurs, l’une des secondes ambitions de la rénovation était de rétablir une atmosphère estivale. D’intégrer l’esprit des bords de mer au sein de l’habitat, afin de s’éloigner au mieux de la ville et sa réalité.
Et je peux vous affirmer que vous ne serez pas déçu du résultat ! Le projet de transformation d’une ferme est relativement long et ardu. Toutefois, les deux propriétaires Ben et Simone Mathews de BAM Interior Design ont réussi leur pari.
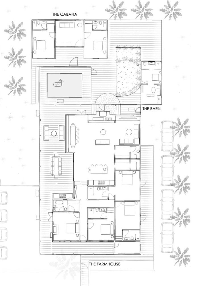
À présent, je vous laisse donc découvrir cette petite merveille, dont voici le plan de la structure :

Un vent de fraicheur souffle sur cette pièce de vie
Un bar en guise de cuisine ouverte
Découvrant cette vieille ferme australienne par hasard, Simone et Ben sont instantanément tombés sous le charme de cette dernière. Et en particulier du plancher d’origine, qu’ils ont par la suite restauré et intégré dans la grange.
Les lieux sont réellement magnifiques. La première chose m’impactant le plus à chaque instant réside dans le jeu de contrastes entre les couleurs. En effet, les murs et mobiliers sont entièrement blancs tandis que le sol est noir ébène. Ainsi, en fusionnant ces deux teintes totalement opposées, la pièce semble davantage profonde et spacieuse. Le blanc des murs et du plafond illuminent l’environnement. Quant au parquet en bois de chêne réchauffe la pièce. Cette alternative est excellente car les tons sombres du parquet contrebalance les nuances froides et pâles des murs.

Par ailleurs, de légères notes boisées ont été incorporées au décor afin de d’accroître l’allure naturelle et maritime des bords de mer. Les étagères incrustées dans le mur sont en bois à l’instar des ustensiles de cuisine. D’autre part, les chaises de bar sont en rotin naturelle telles que les paniers de rangement en osier trônant au-dessus du frigo. En définitive, tout se repense dans les moindres détails. Chaque couleur en rappelle une autre.
Un séjour lumineux et chaleureux pour la transformation d’une ferme
Comme vous le constaterez au fil de la visite, cette charte de couleur noire et blanche réside dans l’ensemble de l’habitat. Malgré les diverses matières des murs, sol et mobilier changeant d’une pièce à une autre, le noir et le blanc correspondent aux deux principaux coloris de la ferme.
Une fois de plus, chaque élément de décoration embellissant la pièce, s’accorde aux couleurs de base. En effet, la spacieuse table à manger, par exemple, est en bois noir telle que les suspensions métalliques du plafond. D’autre part, il est de même pour les chaises blanches accompagnant la table.


Néanmoins, quelques spécificités subsistent et apportent une particularité supplémentaire au séjour. Effectivement, disposé au centre, le canapé bleu clair fait office de cloison entre l’espace cuisine et salon. Munie de nombreux coussins bleus, blancs à franges et au style bohème, le canapé intensifie l’allure décontractée de la pièce. L’ambition de restaurer une ambiance estivale est alors réussie. Le bleu pastel se fond idéalement à l’univers environnant. La pièce est fluide, les tons sont doux et l’air peut ainsi circuler à son aise, sans encombre. Aucun objet ne vient surcharger l’espace. De plus, le séjour regorge de puits de lumière. Les fenêtres encastrées dans le toit en pente ainsi que celle des murs offrent une incroyable clarté se répercutant dans toute la pièce.


Avant de poursuivre la visite, je tenais à m’arrêter quelques instants sur la pièce maitresse du séjour : la cheminée. Entièrement revêtue de pierres, elle accroît le cachet et l’aspect chaleureux de la pièce.

La transformation d’une ferme a permis la création de chambres lumineuses
La résidence, découlant de la transformation d’une ferme, possède une structure intérieure, peu conforme aux habitations ordinaires. Effectivement, comme nous le percevons sur les illustrations ci-dessous, les chambres sont sous les toits comme lorsque l’on aménage des combles. Il est vrai, cela semble tout à fait normal pour une ferme, généralement composé de toits en pente. Cependant, à l’origine les deux architectes ne concevaient pas l’espace dortoir de cette manière. Toutefois, ces derniers aiment jongler avec les designs, les contrastes, les volumes et les superficies. Ils ont donc donné une illusion d’optique en s’amusant sur la profondeur du plafond. En effet, associé aux nuances de blanc, le plafond agrandit ainsi la pièce tout en procurant l’impression d’espaces supplémentaires.



Transformation d’une ferme aux tons délicatement sélectionnés
D’autre part, en matière de couleurs, l’atmosphère est identique à celle des autres pièces. En effet, le noir, le blanc et le beige résident également dans ces lieux. Chaque coloris est placé avec parcimonie. Les matières naturelles rappellent l’esprit rustique de la ferme par le biais du lustre en osier, d’un banc en rotin ou encore des détails décoratifs disposés aux murs.
J’aime beaucoup les nuances de couleurs sélectionnées. En effet, elles se complètent les unes aux autres. Le dosage des contrastes est équilibré. Il existe d’ailleurs une astuce pour cela. Si vous souhaitez opter pour un intérieur blanc et lumineux sans que ce dernier ne transforme en un véritable glaçon, il suffit pour cela de jongler avec les nuances de blancs. Cette chambre en est une excellente illustration. En effet, les décorateurs se sont tournés vers un blanc chaud naturel pour parfaire les murs. Puis, ils ont opté pour un blanc davantage éclatant pour le plafond. L’union de ses deux nuances créée alors un espace extrêmement lumineux sans être froid. Certes le mélange est assez subtil mais je peux affirmer qu’il fera toute la différence.


La salle de bain : un espace à ne pas négliger
La transformation d’une ferme constitue un projet ambitieux. En effet, nous devons faire face aux mauvais états des fondations ainsi qu’à la qualité funeste de l’intérieur dégradé par le temps. De plus, tout est à repenser : la construction des pièces, l’installation de l’électricité, l’eau … C’est un travail relativement long, demandant énormément d’investissement. Cependant, je trouve ici, le résultat parfaitement réussi. Mais ce n’est pas finis ! Les architectes n’ont pas fait les choses à moitié. Effectivement, en plus d’avoir rénové la ferme, celle-ci comporte également une cabane et une grange restaurée à ses côtés ! Ainsi, cette ferme peut alors accueillir de grandes familles et groupes d’amis pour les vacances. Ces derniers bénéficieront de chambres et de salles de bains adéquats.
Enfin, en ce qui concerne les salles de bains, celles-ci sont tout accordées. Toujours dans le contraste des tons sombres et lumineux, les murs en bois et carrelages sont blancs et le sol est gris foncé, effet béton. De surcroît, de petites notes boisées résident également dans ces lieux au travers des tabourets et étagères.

D’autre part, le style de la salle de bain est extrêmement moderne. J’adore le design tout en simplicité de la baignoire. Gris effet béton, comme le carrelage au sol, le design de la baignoire est fin est raffiné. Il se décline aussi en lavabo. Par conséquent, les tons s’uniformisent et s’associent à merveille les uns aux autres.


Transformation d’une ferme : une terrasse extérieure tout en harmonie
Puis pour finir, concluons sur l’espace extérieur. La maison d’hôte, résultant de la transformation d’une ferme, se compose donc de trois espaces distincts. Assurément, en plus de la ferme équipée de quatre chambres et sept salles de bains, une cabane munit de deux chambres et une grange indépendante ont été rénovées en même temps.
Par suite, afin que les vacanciers se sentent à leur aise et qu’ils puissent profiter au mieux de leur séjour, un espace extérieur a aussi été aménagé. Une vaste terrasse en bois parfaitement bien équipée est accessible depuis le séjour. Cet espace est alors idéal pour dîner tout au long de la journée.

Enfin, pour les addicts du repos dans des univers cosy, un coin détente muni d’un siège en rotin suspendu vous attend à côté de la terrasse. Un endroit parfait pour se prélasser au soleil en compagnie d’un livre et d’un délicieux smoothie, n’est-ce pas !


Cette résidence vous a donné envie de partir en Australie ? Vous rêvez de déposer vos valises dans cette sublime ferme ? Et si je vous annonçais que ce rêve devenait réalité ? Eh oui, vous pouvez tout à fait réserver cette bâtisse pour les vacances ! Pour ce faire, il suffit de vous rendre sur le site Soul Of Gerringong dans lequel vous y découvrirez la fameuse ferme disponible pour 14 à 16 personnes. Ainsi qu’un cottage pour un séjour en amoureux ou en famille, accessible pour 6 à 8 personnes.
Crédit photo :Tanya Zouev pour Adore Magazine
Envie d’apporter un esprit bord de mer, une ambiance australienne à votre intérieur ? Piochez et choisissez autant d’articles qui vous plairont parmi cette shopping list.

